
købsaftale underskrevet



købsaftale underskrevet
Havmarken 13, 5500 Middelfart
Stor grund i attraktiv udstykning
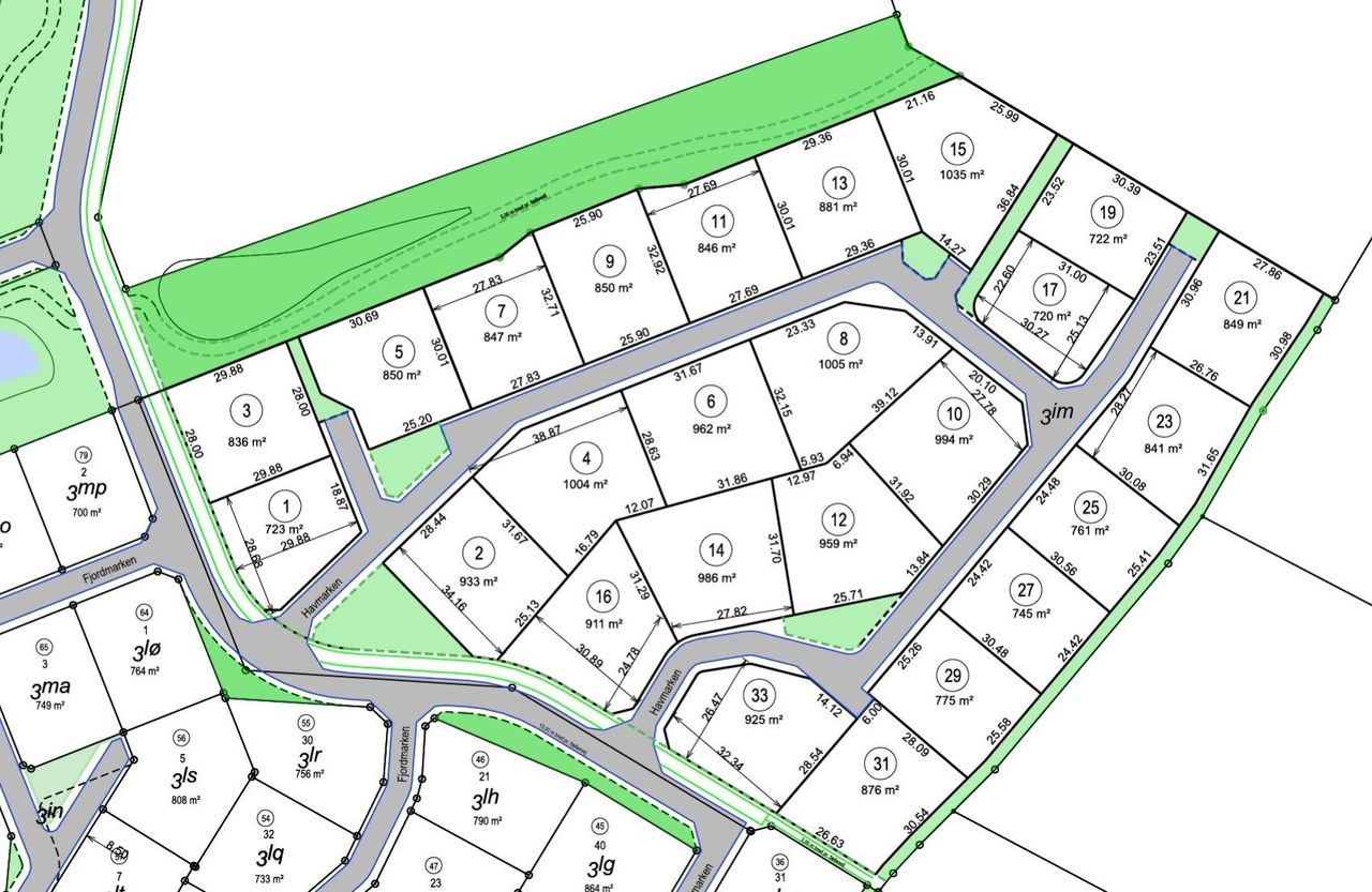
Salget af 3. etape i den attraktive og efterspurgte udstykning ved Skrillingegaard er i fuld gang. Den nye udstykning har taget form i det sydøstlige Middelfart, tæt på Lillebælt, Skrillinge Strand, og Middelfart Golf og Marina. Skrillingegaard er navnet på Middelfarts nye boligområde, der ligger centralt i forhold til både skole og pasningsmuligheder, by- og kulturliv, samt selvfølgelig natur og vand. Ligeledes er der nem adgang til motorvej E45, og området er oplagt for pendlere mod Jylland eller mod Odense.
Én af Skrillingegaards store forcer som ny bydel er omgivelserne. Naturen, de mange udendørs aktiviteter og ikke mindst vandet. For at dyrke netop disse kvaliteter bygges bydelen op omkring åbne, grønne kiler, der giver optimale muligheder for udsyn mod Lillebælt, Fænø og fra de højeste arealer Gamborg Fjord. De grønne kiler giver ikke bare fornemmelsen af plads og højt til loftet, de kommer også til at danne rammen om hverdagens rekreative oplevelser for både boligområdets og nærområdets beboere. Fra Skrillingegaards grønne områder vil der komme stiforbindelser til de omkringliggende boligområder og de naturskønne arealer ved kysten.
Sælger af udstykningen har lagt ekstraordinært mange penge i at gøre denne udstykning til Middelfarts absolut mest attraktive udstykning, med store grønne arealer, stier og generelt god luft mellem villaerne. Her er med andre ord tale om attraktive parcelhusgrunde, hvilket afspejler sig i den store interesse der er for området.
Salget af 3. etape i den attraktive og efterspurgte udstykning ved Skrillingegaard er i fuld gang. Den nye udstykning har taget form i det sydøstlige Middelfart, tæt på Lillebælt, Skrillinge Strand, og Middelfart Golf og Marina. Skrillingegaard er navnet på Middelfarts nye boligområde, der ligger centralt i forhold til både skole og pasningsmuligheder, by- og kulturliv, samt selvfølgelig natur og vand. Ligeledes er der nem adgang til motorvej E45, og området er oplagt for pendlere mod Jylland eller mod Odense.
Én af Skrillingegaards store forcer som ny bydel er omgivelserne. Naturen, de mange udendørs aktiviteter og ikke mindst vandet. For at dyrke netop disse kvaliteter bygges bydelen op omkring åbne, grønne kiler, der giver optimale muligheder for udsyn mod Lillebælt, Fænø og fra de højeste arealer Gamborg Fjord. De grønne kiler giver ikke bare fornemmelsen af plads og højt til loftet, de kommer også til at danne rammen om hverdagens rekreative oplevelser for både boligområdets og nærområdets beboere. Fra Skrillingegaards grønne områder vil der komme stiforbindelser til de omkringliggende boligområder og de naturskønne arealer ved kysten.
Sælger af udstykningen har lagt ekstraordinært mange penge i at gøre denne udstykning til Middelfarts absolut mest attraktive udstykning, med store grønne arealer, stier og generelt god luft mellem villaerne. Her er med andre ord tale om attraktive parcelhusgrunde, hvilket afspejler sig i den store interesse der er for området.
Mette Højer Hinnerskov
Indehaver/Ejendomsmægler MDE Køberrådgiver m/ Tryghedsmærke