



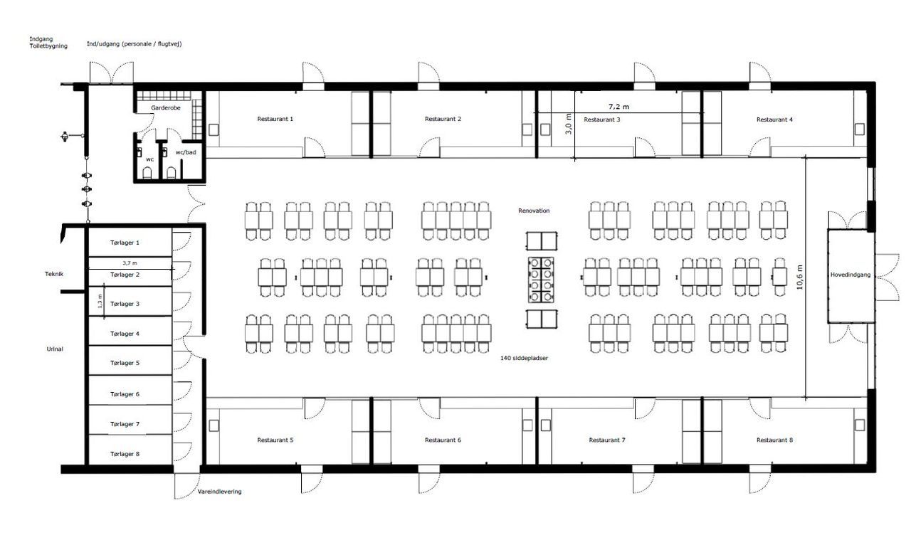
8 madboder, stort fælles spiseområde, stor gårdbutik med produkter fra lokale avlere, og topmoderne toiletfaciliteter danner rammen om den nye foodhall på Trafikplads Langeskov, som åbner i 2026.
Som lejer af en af de 8 madboder, får du adgang til ca. 22 m2 madbod, et mindre tørlager på 5 m2, og et udendørs skur til renovation. Som lejer skal du alene sørge for at betjene madboden.
Det store fælles spiseområde i midten af foodhall'en er ca. 400 m2, og om rådet bliver, sammen med de topmoderne toiletfaciliteter, som placeres i bunden af foodhall'en, bortforpagtet. Det er forpagterens ansvar at sikre, at foodhall'en altid fremstår ren og imødekommende. Som lejer af en madbod skal du derfor alene koncentrere dig om at drifte madboden.
Når de forventeligt ca. 350.000 årligt besøgende i foodhall'en træder ind af hoveddøren, mødes de af en knap 400 m2 stor gårdbutik, hvor de har mulighed for at købe egnens friske råvarer, blomster og lidt snack til køreturen.
Trafikplads Langeskov bliver Danmarks største trafikplads, beliggende ved afkørsel 47 Langeskov. Indkørslen til området er placeret ca. 100 meter fra afkørslen, så de mange besøgende får de bedst mulige tilkørselsforhold.
Trafikpladsen kommer til at indeholde foodhall, gårdbutik, McDonal, flere ladeoperatører, tankanlæg, rasteplads for lastbilchauffører, hotel og forventeligt en eller flere box-butikker.
Alle tegninger og arealer er med forbehold og uden ansvar for udlejer, da projektet stadig er under udvikling. Indtil byggeriet går i gang skal der være mulighed for at foretage ændringer, for at optimere foodhall'en for alle involveredes bedste.
8 madboder, stort fælles spiseområde, stor gårdbutik med produkter fra lokale avlere, og topmoderne toiletfaciliteter danner rammen om den nye foodhall på Trafikplads Langeskov, som åbner i 2026.
Som lejer af en af de 8 madboder, får du adgang til ca. 22 m2 madbod, et mindre tørlager på 5 m2, og et udendørs skur til renovation. Som lejer skal du alene sørge for at betjene madboden.
Det store fælles spiseområde i midten af foodhall'en er ca. 400 m2, og om rådet bliver, sammen med de topmoderne toiletfaciliteter, som placeres i bunden af foodhall'en, bortforpagtet. Det er forpagterens ansvar at sikre, at foodhall'en altid fremstår ren og imødekommende. Som lejer af en madbod skal du derfor alene koncentrere dig om at drifte madboden.
Når de forventeligt ca. 350.000 årligt besøgende i foodhall'en træder ind af hoveddøren, mødes de af en knap 400 m2 stor gårdbutik, hvor de har mulighed for at købe egnens friske råvarer, blomster og lidt snack til køreturen.
Trafikplads Langeskov bliver Danmarks største trafikplads, beliggende ved afkørsel 47 Langeskov. Indkørslen til området er placeret ca. 100 meter fra afkørslen, så de mange besøgende får de bedst mulige tilkørselsforhold.
Trafikpladsen kommer til at indeholde foodhall, gårdbutik, McDonal, flere ladeoperatører, tankanlæg, rasteplads for lastbilchauffører, hotel og forventeligt en eller flere box-butikker.
Alle tegninger og arealer er med forbehold og uden ansvar for udlejer, da projektet stadig er under udvikling. Indtil byggeriet går i gang skal der være mulighed for at foretage ændringer, for at optimere foodhall'en for alle involveredes bedste.