Strandvejen 4 3A., 5300 Kerteminde
Restaurationslokale under opførsel udlejes
Midt i Kerteminde, med en særdeles synlig placering og tæt på havnemiljøet er der til ultimo 2026 mulighed
for at åbne en ny restaurant.
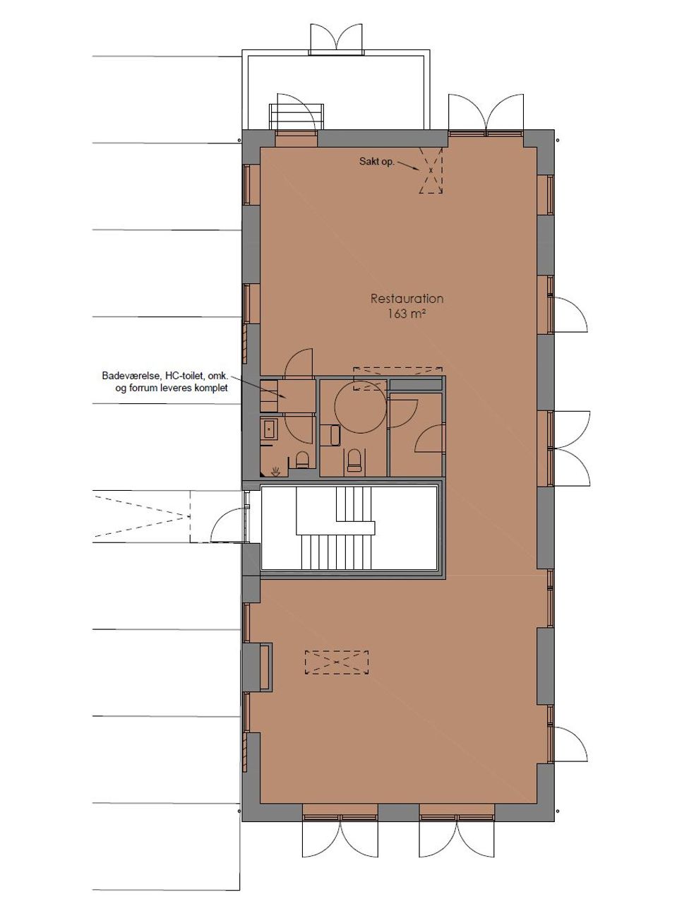
Lokalet, der bliver en del af en større bebyggelse med både restauranter, en butik og en del lejligheder.
Indgås der lejekontrakt inden ejendommen er færdigopført, kan der naturligvis indgås aftale om ændringer i apteringen.
KERTEMINDE:
Udover de godt 24.000 indbyggere i Kerteminde Kommune, kommer der hvert år ca. 250.000 turister til byen. Med byens idylliske havn, hyggelige gader og nærhed til stranden er Kerteminde en oplagt destination for både afslapning og eventyr, uanset om man søger kultur, natur, kulinariske oplevelser, eller hvis man blot har et ønske om at nyde den historiske atmosfære, som mærkes i hvert et hjørne af byen. Der er med andre ord rig mulighed for at drive en velbesøgt restaurant.
Lokalet, der bliver en del af en større bebyggelse med både restauranter, en butik og en del lejligheder.
Indgås der lejekontrakt inden ejendommen er færdigopført, kan der naturligvis indgås aftale om ændringer i apteringen.
KERTEMINDE:
Udover de godt 24.000 indbyggere i Kerteminde Kommune, kommer der hvert år ca. 250.000 turister til byen. Med byens idylliske havn, hyggelige gader og nærhed til stranden er Kerteminde en oplagt destination for både afslapning og eventyr, uanset om man søger kultur, natur, kulinariske oplevelser, eller hvis man blot har et ønske om at nyde den historiske atmosfære, som mærkes i hvert et hjørne af byen. Der er med andre ord rig mulighed for at drive en velbesøgt restaurant.
Midt i Kerteminde, med en særdeles synlig placering og tæt på havnemiljøet er der til ultimo 2026 mulighed
for at åbne en ny restaurant.
Lokalet, der bliver en del af en større bebyggelse med både restauranter, en butik og en del lejligheder.
Indgås der lejekontrakt inden ejendommen er færdigopført, kan der naturligvis indgås aftale om ændringer i apteringen.
KERTEMINDE:
Udover de godt 24.000 indbyggere i Kerteminde Kommune, kommer der hvert år ca. 250.000 turister til byen. Med byens idylliske havn, hyggelige gader og nærhed til stranden er Kerteminde en oplagt destination for både afslapning og eventyr, uanset om man søger kultur, natur, kulinariske oplevelser, eller hvis man blot har et ønske om at nyde den historiske atmosfære, som mærkes i hvert et hjørne af byen. Der er med andre ord rig mulighed for at drive en velbesøgt restaurant.
Lokalet, der bliver en del af en større bebyggelse med både restauranter, en butik og en del lejligheder.
Indgås der lejekontrakt inden ejendommen er færdigopført, kan der naturligvis indgås aftale om ændringer i apteringen.
KERTEMINDE:
Udover de godt 24.000 indbyggere i Kerteminde Kommune, kommer der hvert år ca. 250.000 turister til byen. Med byens idylliske havn, hyggelige gader og nærhed til stranden er Kerteminde en oplagt destination for både afslapning og eventyr, uanset om man søger kultur, natur, kulinariske oplevelser, eller hvis man blot har et ønske om at nyde den historiske atmosfære, som mærkes i hvert et hjørne af byen. Der er med andre ord rig mulighed for at drive en velbesøgt restaurant.
Økonomi
Leje pr. år
317.850 kr.Depositum
158.925 kr.Jan Højer Hinnerskov
Indehaver